Коммерческая недвижимость под производство, склад или логистику.
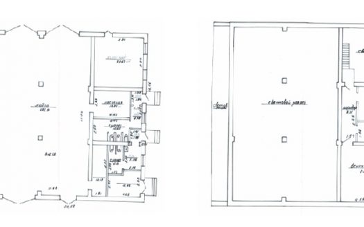
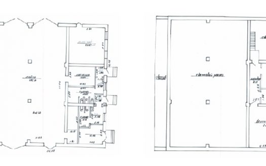
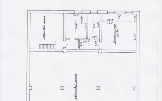
Продаётся производственно-складское помещение общей площадью 9484 м2. Имеется просторное офисное помещение площадью 135 м2.
Раннее использовалось под производство пакетов и изделий из пластмасс.
Расположено по адресу: Республика Беларусь, г. Витебск, пр-т Фрунзе 81/20. Удачное месторасположение.
Высота потолка 8 метров, ширина пролётов 18 и 24 метра, длина пролета — 96 метров. В 3-х пролётах имеется кранбалка, грузоподъёмностью 3 тонны.
Есть собственная электроподстанция мощностью до 6 000 кВт, с изолированным помещением площадью 348м2.
Земля, площадью 14 326,24 м2, является городской собственностью и оформлена в аренду до 2062 г.
Есть возможность подключения природного газа, есть вода и канализация.
Возможна продажа здания отдельными пролётами.
По требованию вышлем планы помещений, проведем оценку применимости под ваши задачи.
Цена: 1 170 000 евро (торг уместен) 418 000 евро плюс НДС.
Собственник: +375298906102






























































