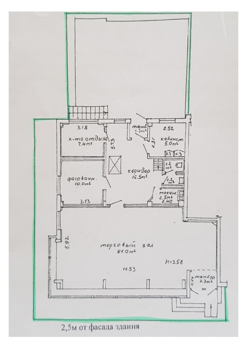
г. Минск, ул. Одоевского. Продовольственный магазин. Продаю готовый бизнес. Общая 191м2 зал торговый 61м2 + тамбур 2,3м2. Оживлённое место возле дороги, парковка для клиентов. Удобный подъезд для грузовых автомобилей, удобная рампа. Очень опытный персонал!!!
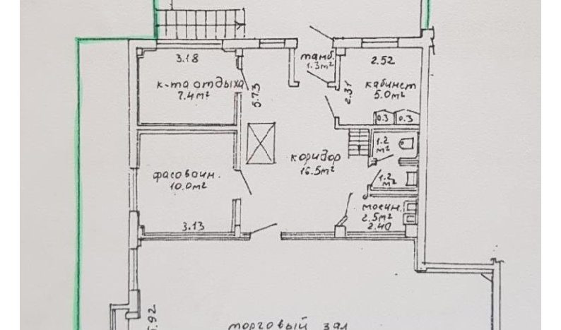
Магазин расположен в спальном, густо населенном районе г. Минска. Магазин является встроенным в 5ти — этажный жилой дом, размещается на первом этаже. Два уровня (1ый этаж + цокольное, грузовой лифт). Имеет два отдельных входа: для посетителей, персонала и для загрузки продуктов. Помещение имеет необходимый состав торговых, складских, подсобных, бытовых помещений.
Обслуживание покупателей производится методом заприлавочной торговли.
Для хранения запаса охлажденных полуфабрикатов установлена охлаждаемая камера теплоизоляционная, холодильная. Для хранения запаса колбасных изделий установлен двухдверный шкаф холодильный гастрономический.
Для санитарной обработки торгового инвентаря предусмотрена моечная.
Торговый зал оснащен современным серийно-выпускаемым технологическим оборудованием, приобретенных у официальных дилеров производителей оборудования. Видеонаблюдение.
Цена 25 000 торг.
+375257403137 (Viber) (Telegram) звоните с 09.00-21.00 часов.












































